Designing and supplying turnkey process ventilation systems is our business. Englo engineers will start by working closely with you to develop a solid understanding of your process operation. With a scope of work defined we will prepare a concept design and budget quotation.
During the initial evaluation and development of your turnkey system we may do a site visit to field measure process areas. Field sketches are made and a concept sketch is prepared for estimating and engineering review.
This is followed by preparation of field sketches and 3D concept models.
Following receipt of your purchase order we will complete a 3D design model in SolidWorks.

3D Design Model – Coal Crusher Building

3D Design Model – Coal Tripper and Hammermill Building
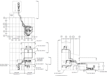
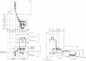
Plan, Elevation and Section Views are prepared for Fabrication and Installation.
Field Installation, Startup and Commissioning
			




